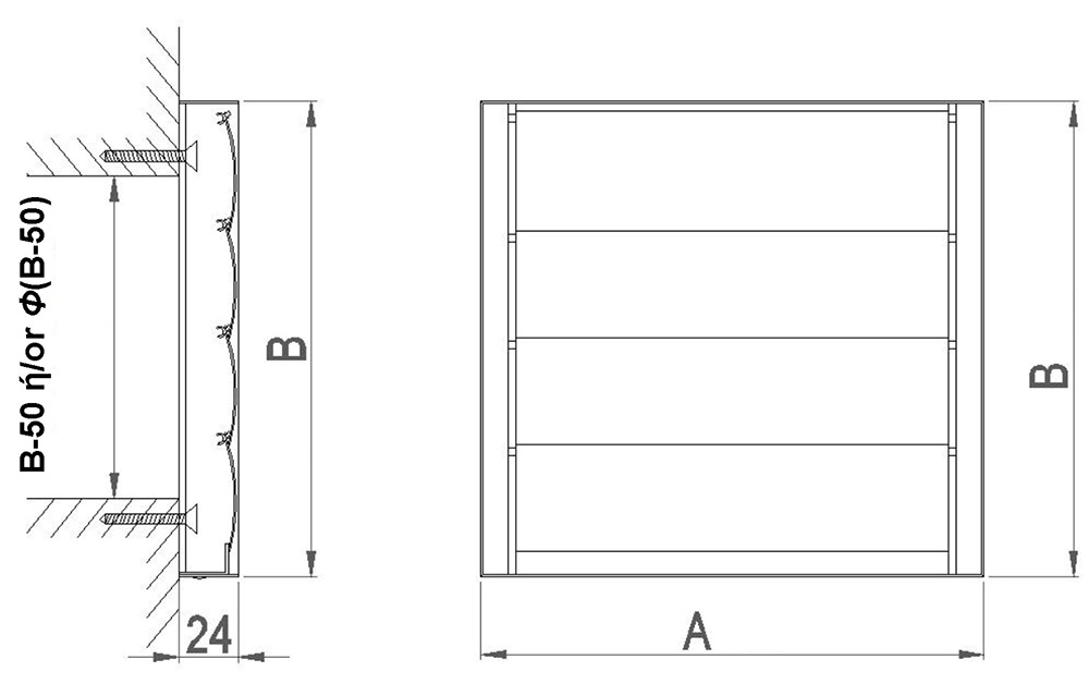
Στόμιο τοίχου, βαρύτητας χωρίς πλαίσιο με μια σειρά πτερύγια από αλουμίνιο για απόρριψη του αέρα λόγω υπερπίεσης. Είναι δυνατή η ηλεκτροστατική βαφή σε χρώμα RAL.
Επίσης διατίθεται στις παρακάτω εκδόσεις:
- Β-L-PVC: Με πτερύγια βαρύτητας από πλαστικό, δεν βάφεται.
