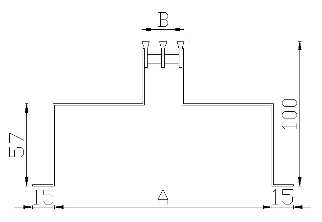
Στόμιο δαπέδου, που τοποθετείται στην βάση μεγάλων γυάλινων υαλοπινάκων. Για προσαγωγή θερμού αέρα. Μπορεί να χρησιμοποιηθεί και για επιστροφή αέρα. Κατασκευασμένο από ανοδιωμένο αλουμίνιο και γαλβανισμένο χάλυβα. Μπορεί να βαφτεί ηλεκτροστατικά σε χρώμα RAL.
| ΠΙΝΑΚΑΣ ΔΙΑΣΤΑΣΕΩΝ |
||||||
|---|---|---|---|---|---|---|
| Αρ. σχισμών | A | B | ||||
| E12-S-1 |
1 | 130 | 18 | |||
| E12-S-2 | 2 | 150 | 30 | |||
| E12-S-3 | 3 | 180 | 42 | |||
| E12-S-4 | 4 | 230 | 54 | |||
| E12-S-5 | 5 | 280 | 66 | |||
| E12-S-6 | 6 | 330 | 78 | |||
